ImoConstanta utilizează fişiere de tip cookie pentru a personaliza și îmbunătăți experiența ta pe Website-ul nostru. Înainte de a continua navigarea pe Website-ul nostru te rugăm să aloci timpul necesar pentru a citi și înțelege conținutul Politicii de Cookie. Prin continuarea navigării pe Website-ul nostru confirmi acceptarea utilizării fişierelor de tip cookie conform Politicii de Cookie.

Apartament decomandat cu bucatarie inchisa, luminos, la 2 pasi de plaja

Mamaia-Sat

73.000 € + TVA
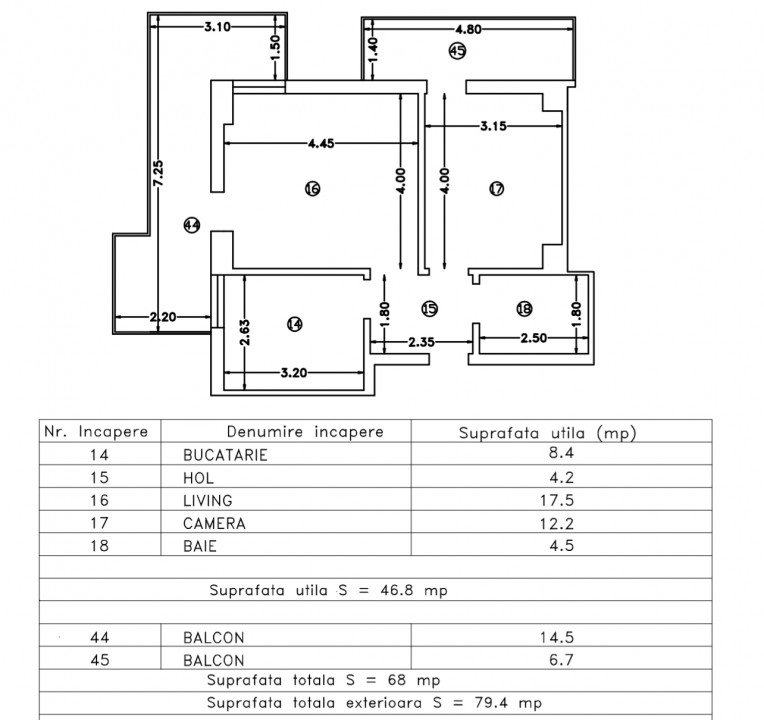
  • Nr. camere:2
  • S. utila:47.00 mp
  • S. construita:73.00 mp
  • Comp.:Decomandat
  • Confort:Lux
  • Etaj:Etaj 3
  • Nr. bucatarii:1
  • Nr. bai:1
  • Nr. balcoane:1
  • Nr. parcari:1
  • Pret garaj:12.000 € + TVA
  • An constructie:2024
  • Structura:Beton
  • Tip imobil:Bloc
  • Regim inaltime:D+P+5
  • Orientare:Nord-Est

Apartamentul tau la MARE!
Apartament cu 2 camere decomandat de vanzare cu bucatarie inchisa, terasa de 21 mp cu loc de servit masa, in ansamblul Xenero Residence Mamaia!

Ansamblu cu facilitati de resort, fara taxe de mententanta, pe malul lacului Siutghiol, intr-o zona linistita.

Cea mai mare parcare subterana din Mamaia Nord, parcare supraterana, loc de joaca pentru copii, piscina, restaurant, alei pietonale, finisaje premium.

Descopera cel mai nou concept de locuinta rezidentiala si de vacanta in cadrul aceluias complex, finalizat, foarte aproape de plaja dar ocrotit de linistea si calmitatea Lacului Siutghiol.
La acest preț apartamentul se vinde finisat complet la CHEIE.
Pozele atașate sunt cu titlu de prezentare.

Loc de parcare in parcarea subterana 12000 euro

Pret: 80000 euro TVA inclus 9%

Utilitati
  • Utilitati generale: Curent, Apa, Canalizare, Gaz, CATV
  • Sistem incalzire: Centrala proprie, Calorifere
Finisaje
  • Pereti: Vopsea lavabila
  • Podele: Parchet, Gresie
  • Stare: Finisat
  • Ferestre: PVC
  • Usa intrare: Metal
  • Usa interior: Lemn
Dotari
  • Contorizare: Apometre, Contor gaz
  • Imobil: Interfon, Lift, Spatii agrement, Gradina, Piscina exterioara
Bogdan Anca
Bogdan Anca
agent imobiliar
0720090392

Tomis Top Estate

Agentie imobiliara

0753822539 Vezi toate anunturile

Proprietati similare

Apeleaza Chat