








































Apartamentul nr. 8 – spațiul în care familia ta va înflori
Unele locuințe sunt mai mult decât niște camere – sunt locuri unde se creează amintiri, unde râsetele copiilor se împletesc cu liniștea serilor, unde te simți în siguranță, iubit și „acasă”.
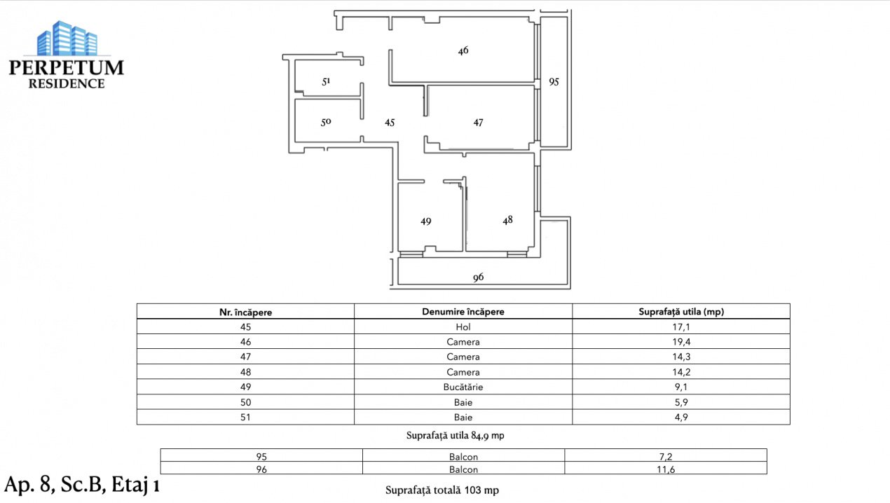
Apartament cu 3 camere pline de lumină și căldură:
✔️ 2 dormitoare pentru vise liniștite
✔️ Living spațios – locul unde familia se adună
✔️ Bucătărie închisă – perfectă pentru mese cu suflet
✔️ 2 băi
✔️ 2 balcoane – colțuri de relaxare și inspirație
Totul este gândit cu grijă, de la spațiile aerisite și luminoase până la intimitatea perfect echilibrată. Este genul de apartament în care te vezi crescând alături de cei dragi.
Disponibil la mai multe etaje, în cadrul Perpetum Residence III – Tomis Nord, într-o zonă ideală pentru familii: aproape de centru comercial Carrefour Tom, magazine, parcuri și tot ce contează.
Finisaje premium, confort termic prin încălzire în pardoseală, locuri de parcare și un mediu sigur și elegant – pentru liniștea întregii familii.
Nu e doar o casă. Este noul vostru cămin.
Programează acum o vizionare și profită de oferta lunii!
Imaginile sunt cu scop de prezentare.