ImoConstanta utilizează fişiere de tip cookie pentru a personaliza și îmbunătăți experiența ta pe Website-ul nostru. Înainte de a continua navigarea pe Website-ul nostru te rugăm să aloci timpul necesar pentru a citi și înțelege conținutul Politicii de Cookie. Prin continuarea navigării pe Website-ul nostru confirmi acceptarea utilizării fişierelor de tip cookie conform Politicii de Cookie.

FINALIZAT! Apartament 3 camere cu terasă spațioasă – Primavera Campus, Constanța

Constanta, Tomis Nord

174.255 € + TVA
  • Nr. camere:3
  • S. utila:77.15 mp
  • S. construita:120.40 mp
  • Comp.:Decomandat
  • Etaj:Etaj 6
  • Nr. bucatarii:1
  • Nr. bai:1
  • Pret parcare:15.000 € + TVA
  • Pret garaj:15.000 € + TVA
  • An constructie:2023
  • Structura:BCA
  • Tip imobil:Bloc
  • Regim inaltime:S+D+P+8
  • Orientare:Sud

Ești în căutarea unui apartament de 3 camere cu terasa, dormitoare spațioase, vedere excelenta ?
Primavera Campus este ceea ce cauți! Bloc nou exclusivist, chiar la intrare in Statiunea Mamaia si langa Univesitatea Ovidius, chiar langa UNIVERSITY PARK.

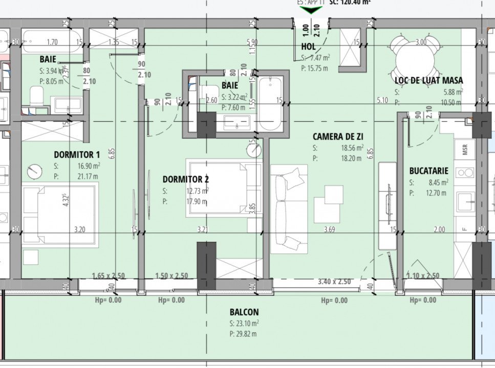
Apartamentele de 3 camere Primavera Campus sunt gândite astfel încât să satisfacă nevoile fiecăruia.
Aceasta varianta dispune de o suprafata construita de 120,40 mp, din care suprafata utila fiind de 77,15 mp, la care se adauga o terasa generosa de 23.10mp.
Compartimentarea este una favotabila, bucatarie inchisa, 2 dormitoare si 2 bai.

Beneficiile care va vor fi oferite de ansamblul Primavera Campus sunt urmatoarele:
-Structura de rezistenta este compusa din plansee, stalpi/diafragme si grinzi din beton;
- Pereti de zidarie termoizolanta din BCA;
- Finisajul interior al peretilor si tavanelor este realizat din glet pregatit pentru aplicarea de vopsele lavabile;
- Tamplaria este cu profil de PVC cu rupere de punte termica si geam termoizolant tripan;
- Incalzirea apartamentului se va face cu ajutorul incalzirii prin pardoseala.;
-Fiecare camera de zi si fiecare dormitor vor fi dotate cu centrala de purificare a aerului (schimbatoare de caldura) care asigura aport de aer proaspat fara pierderi de energie, impiedica patrundera prafului in apartament si regleaza umiditatea din aer.
- Usa de acces apartament metalica;
-Panouri solare;
-Panouri fotovoltaice;
- Etaje subterane de parcari care insumeaza un numar de 130 de locuri la 100 de apartamente;
- Blocul va fi prevazut cu 2 lift-uri de ultima generatie si 2 scari.

Utilitati
  • Utilitati generale: Curent, Apa, Canalizare, Gaz, Curent trifazic
  • Sistem incalzire: Centrala imobil, Incalzire pardoseala
Finisaje
  • Izolatii exterior: Exterior
  • Ferestre: PVC
  • Usa intrare: Metal
Dotari
  • Spatii utile: Terasa, Dressing
  • Contorizare: Apometre, Contor gaz
  • Mobilat: Nemobilat
  • Imobil: Interfon, Videointerfon, Lift
Bogdan Anca
Bogdan Anca
agent imobiliar
0720090392

Tomis Top Estate

Agentie imobiliara

0753822539 Vezi toate anunturile

Proprietati similare

Apeleaza Chat