
























🏡 Agenți Experți Imobiliari vă oferă spre achiziție un apartament cu 3 camere, situat în Constanța, zona Tomis Plus, într-un bloc nou, construit în anul 2014.
✨ Apartamentul beneficiază de compartimentare decomandată premium, spații generoase și lumină naturală din abundență. Zona de zi este elegant amenajată, cu living spațios și zonă de dining 🍽️. Bucătăria este închisă, complet mobilată și utilată, cu acces către balconul închis 🌿, ideal pentru relaxare.
🛏️ Dormitorul matrimonial este dotat cu pat king-size și dressing generos, iar al doilea dormitor este versatil, potrivit pentru copii sau birou.
🛁 Baia dispune de cadă cu hidromasaj, oferind un plus de confort și relaxare. 📍 Imobilul este amplasat într-o zonă liniștită, cu acces rapid către magazine, școli și mijloace de transport.
📌 Detalii generale:
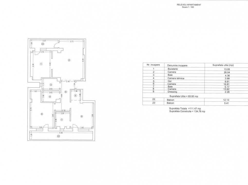
📐 Suprafață utilă totală: 114,47 mp
🏠 Număr camere: 3
🏢 Etaj: 1/4
🧩 Compartimentare: Decomandat
🗓️ An construcție: 2014
🏗️ Tip imobil: Bloc nou
Pentru mai multe informații despre acest anunț imobiliar sau pentru a programa o vizionare, nu ezitați să ne contactați. Suntem aici pentru a vă ajuta să găsiți locuința perfectă pentru stilul dumneavoastră de viață!
E.5(P29389)