
















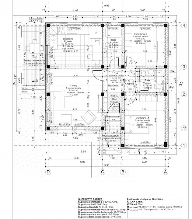
Va propunem spre vanzare vila individuala in suprafata construita de 92,7mp pe terenuri cu suprafate de 340-360mp, suprafata utila de 73mp la care se adauga terase de aproape 12mp. Casa se vinde la gata, direct de la dezvoltator, are compartimentare decomandata, 2 bai, 2 dormitoare, un living si o bucatarie ce se poate inchide. Curtea libera este de aproximativ 250mp. Incalzirea se face pe baza de centrala termica pe curent si incalzire in pardoseala, ceea ce face ca aceasta casa sa aiba consumuri foarte eficiente de energie. Se poate aplica imediat pentru panouri fotovoltaice.
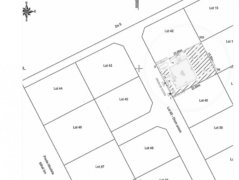
Localizare: Str. Sfanta Ana (cu acces direct catre Radiala 9 Berceni) si Str. Oituz cu intrare din Comuna Berceni. Merita o vizionare!
Pretul este de 125.000 Euro sau 129.000 Euro in functie de locatie sau teren (TVA INCLUS).