












Spațiu comercial de 220 mp în zona Nerva Traian in cladire nou construita 2025 – ideal pentru restaurant, clinică sau showroom
Vă prezentăm spre vânzare un spațiu comercial generos cu o suprafață totală utilă de 220,6 mp, situat în zona ultracentrală Nerva Traian, pe o stradă liniștită, cu acces facil la mijloace de transport, sedii de birouri și zone rezidențiale premium.
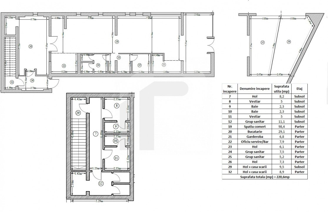
Compartimentare eficientă:
Parter – 130,7 mp utili:
Spațiu principal de vânzare/comercial: 98,4 mp (încăperea 19)
Bucătărie complet separată: 7,4 mp
Garderobă: 6,8 mp
Oficiu servire/bar: 7,9 mp
Grupuri sanitare (dublu acces): 12,2 mp
Subsol – 34,6 mp utili:
Hol acces și vestiare personal
2 băi și un grup sanitar suplimentar (11,1 mp)
Acces dublu – intrare principală și secundară
Holuri + case scării: 15,3 mp
Ideal pentru:
Restaurante/cafenele (flux logic între spațiu de servire – oficiu – bucătărie)
Clinică medicală/stomatologică (compartimentare versatilă și grupuri sanitare multiple)
Showroom cu back-office/depozitare în subsol
Sediu firmă, co-working, beauty center
Caracteristici tehnice:
Clădire cu regim de înălțime Susol + Parter + 6 etaje
Spațiu vitrat pe întreaga lungime a fațadei (expunere excelentă)
Înălțime generoasă în zona comercială
Acces pietonal direct din stradă
Toate utilitățile disponibile (inclusiv gaze, 380V dacă este necesar)
Compartimentare ce permite adaptare ușoară în funcție de destinație
Localizare:
Zona Nerva Traian, la 5 minute de Piața Unirii și Timpuri Noi
Acces rapid la Splaiul Unirii, Bd. Octavian Goga, Bd. Decebal
Zonă cu trafic pietonal, birouri și blocuri locuite permanent
Se pot achizitona separat doua locuri de parcare.
Pretul este 2500 euro per mp plus TVA si se preda la GRI