
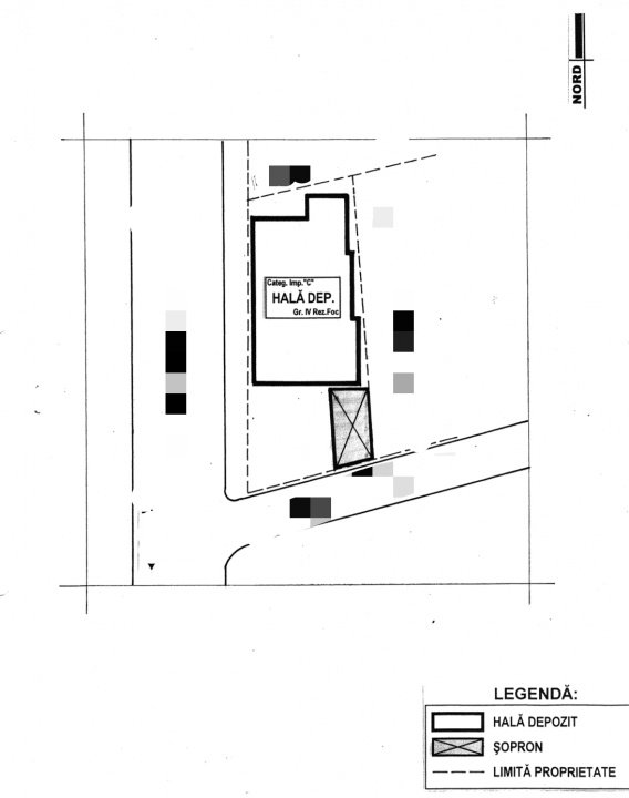
Se oferă spre vânzare un imobil compus din teren în suprafață de 790 mp și hală industrială cu suprafață construită la sol de 430 mp, amplasat într-o zonă cu acces rapid și vizibilitate bună, pe Calea Câmpulung, ruta Pitești – Mioveni.
Caracteristici construcție:
Structură realizată din panouri sandwich de 6 cm
Acoperiș din panouri sandwich de 8 cm, cu pantă dublă de 25%
Înălțime la cornișă: 3,30 m
Înălțime la coamă: 5,80 m
Spațiu generos, pretabil pentru producție, depozitare sau activități logistice
Utilități:
Gaze naturale
Energie electrică trifazică (380V)
Apă
Canalizare
Încălzirea halei se face prin centrală termică pe gaz
Acces și logistică:
Acces facil pentru aprovizionare:
autovehicule de până la 3,5 tone
7,5 tone
TIR
Acces direct din drum asfaltat
Localizare:
Zona Calea Câmpulung
Axă rutieră Pitești – Mioveni
Acces rapid către principalele artere de circulație
Pretabil pentru:
Producție
Depozitare
Logistică
Activități comerciale sau industriale