



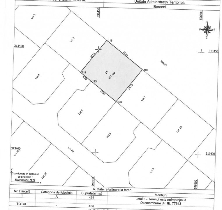
Teren intravilan cu utilitati in zona în zona Străzii Trandafirilor din comuna Berceni
- suprafață de 453 mp
- utiliăți: utilitati in zona
- acces la: strada asfaltata / stradă pietruită
- acces pasaj Berceni, metrou Tudor Arghezi
Important: Imaginile sunt cu caracter informativ, iar delimitarea loturilor poate diferi in de realitate.
ComunaBerceni™ crede in verde
...de peste 10 ani impreuna
Dezvoltator imobiliar ComunaBerceni.ro - Sediul: Bd. 1 Mai 65 - Berceni, Ilfov.